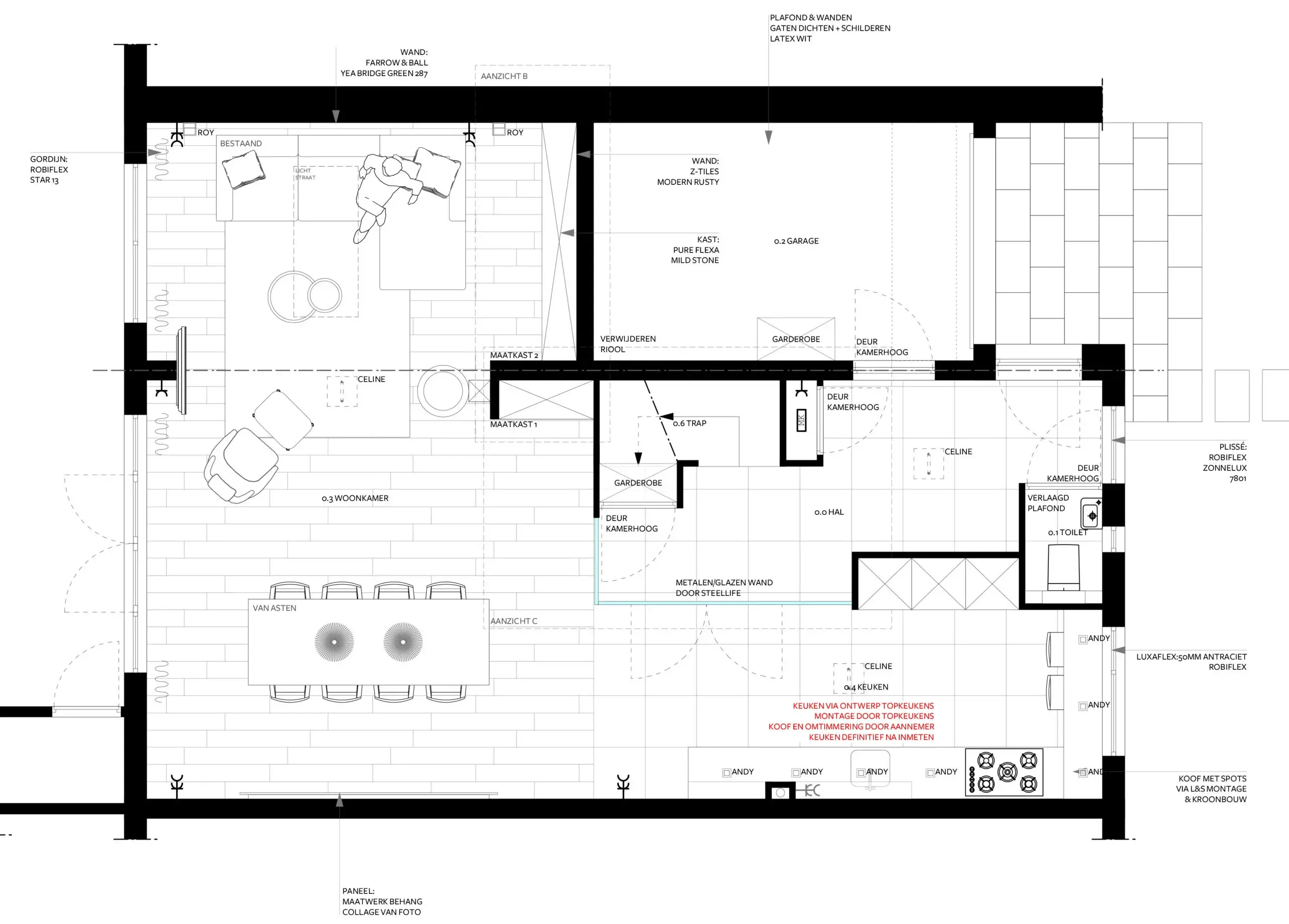
Renovatie van een woonhuis in Sassenheim. Voor de begane grond hebben we een volledig nieuwe indeling gemaakt van het toilet, de hal, keuken en woonkamer.
Het uitgangspunt voor dit ontwerp is ruimte en licht doorheen de volledige woning. Hierdoor is de hal uitgerust met een pui van staal en glas. Bovendien hebben we de zichtlijnen open gelaten.
Er is een harmonische eenheid in de woning, doordat de basis is uitgerust met dezelfde kleuren en materialen.










